New Housing Development Planned on Beckenham Rd, September 2025

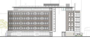
A planning application has been made to the Council for 18 flats and involves the demolition of a large Victorian house on Beckenham Road opposite the old Post Office.

No. 5 Beckenham Road is a large Victorian house from the mid-1800s and one of a group of five surviving villa houses situated close to Beckenham High Street. It is situated in a prominent location, opposite the locally-listed Post Office building near the Grade II-listed Cinema and War Memorial, and close to Beckenham High Street Conservation Area.

5 Beckenham Road, BR3 4PL

The house is currently hidden by scaffolding and sheeting but it is a fine and unaltered example of this kind of grand Victorian house located on a principal road in the Beckenham. The red brick front elevation, yellow London stock brick flank and rear walls, with carved stone lintels and insert panels, remain unpainted unlike its neighbours. It also retains its original timber sliding sash windows and decorated barge boards.

The planning application is for demolition of the  existing building, replacing it with a six-storey block of 18 flats, to accommodate up to 68 people.  An underground car park with 12 parking spaces is proposed, with access at the rear of the site via Westfield Road. Although the development is for more than 10 units, no affordable housing provision has been included in the application.

As far as we are aware, there has not been a public consultation for the scheme. and we do not know if any leaflets have been made available to local residents.

We have written to the council objecting to the application, focussing on the loss of an attractive Victorian building, the scale and density of the new development, the lack of any affordable housing provision, road safety concerns, amongst other issues.

Full details of the planning application are on the Council’s website here 25/01262/FULL
where you can also leave your comments about the proposal.  Or send an email to planning@bromley.gov.uk and the case officer jessica.lai@bromley.gov.uk.

If you wish to comment, you must give your full name and address, or your views may not be registered.

Public exhibition of plans for Christ Church Beckenham

On Saturday 14th September, Christ Church Beckenham will host a public exhibition of plans for proposed upgrades to the church’s facilities.

Time: 11am – 3pm
Location: Christ Church Beckenham, High Street/Fairfield Road BR3 3LA

The proposed works include a new building on Fairfield Road linking the existing church and church hall buildings.

More information on the church website: Christ Church Beckenham.

Local residents can provide feedback for the planning application via an online survey: https://www.surveymonkey.com/r/9SS83QR.

Prominent Victorian house doomed to be demolished, January 2022

The final decision will be made by councillors at a planning committee meeting at 7pm on Thursday 20th January 2022.   

Situated on the corner of Downsbridge Road, at a prominent location near the brow of the hill between Beckenham and Shortlands, Coleridge House at 79 and 79a Bromley Road is a distinctive building from the late-Victorian era and one of the last remaining grand villa houses that once lined Bromley Road.  

The three-storey building is run by Riverside Housing Association (which also runs Calverley Close on Southend Road) and currently accommodates 12 self-contained social housing flats for the elderly and an adjoining, four-bedroom single family house (79a).  The £12M development involves the demolition of the entire building, replacing it with a five-storey block of 27 flats much bigger than the existing building, and an underground car park.  The proposed scheme comprises 5 No. one-bedroom, 17 No. two-bedroom and 5 No. 3-bedroom flats, providing space for up to 95 occupants.  

The Victorian Society has said, “Victorian villas such as this may be considered fairly common nationally, but within the local context, it is a rare survival. The house has both architectural and historical interest as a building representative of the growth of the area in the late 19th century, and as such, should be considered a local landmark and a non-designated heritage asset and its loss would harm the significance of the building and the contribution it makes to the local area.”  It goes on to say,“The two buildings in combination retain a vestige of the formerly leafy character of the area, and the loss of one would erode this character. If permitted, this could set a precedent for the piecemeal demolition of similar surviving larger 19th/20th century houses in the area.”

Bromley Council has committed to be carbon neutral by 2029 and, considering the UK’s national carbon reduction targets, we believe that retaining, refurbishing or converting existing buildings should always be preferable over demolition.

It is also very disappointing to see in their Affordable Housing Viability Statement that the developer, like many others involved in residential schemes in Beckenham in recent years, doesn’t include any affordable housing provision.  According to planning application documents, the smallest one-bedroom flat in the £12M development is expected to market for £325,000.  The developer’s claim that they can’t afford to provide affordable housing in the scheme, is unacceptable in our view.

The planning officer’s report can be found here

A list of the councillors who’ll be making the final decision at the meeting can be found here. 

Calverley Close – Public Consultation Event 26 October 2021

 

proposed block image

Calverley Close, Southend Road

We’ve just been informed that a public consultation event is happening on Tuesday 26th October concerning the entire redevelopment of the estate, after residents voted over the summer in favour of complete regeneration. 

Built in the 1980s near the brow of Beckenham Hill, the estate currently has around 200 homes and is operated by Riverside Housing Association, which manages the Borough’s council housing.  They also operate Coleridge House, a Victorian villa at 79 Bromley Road, which is proposed for demolition and redevelopment.

According to information published in April by Riverside, the existing homes at Calverley Close are proposed to be demolished and replaced with several new blocks ranging in height from three to seven stories.  The total number of new homes would be 358, half of which would be allocated for private sale.  The remainder would be for social rent.  Demolition and construction would be phased over four stages of redevelopment.

A planning application is expected to be submitted after Christmas.

Riverside’s latest information showing current proposals, consultation process and timescale for the redevelopment can be found here:  https://calverleyclose.co.uk/

The Public Consultation Event starts at 18:30 on Tuesday 26th October on Zoom.  You can participate in the consultation event by clicking the link below, a few minutes before this time: www.tinyurl.com/CalverleyClose26October




 

Amendments to development proposals at 79 & 79a Bromley Road

IMG_6412 3

79  and 79a Bromley Road  20/03881/FULL

We’ve just been made aware that amended plans have recently been submitted for a  planning application made last December involving the demolition of a large Victorian house, and the building of 27 flats.  The scheme is still being considered by the Council.

Situated in a prominent location at the brow of the hill between Beckenham and Shortlands, at the corner of Downsbridge Road, 79 and 79a Bromley Road is a distinctive building from the mid-1800s and one of the last remaining grand villa houses that once lined Bromley Road.  

The three-storey building is run by Riverside Housing Association (which also runs Calverley Close on Southend Road) and currently accommodates 13 flats and an adjoining, four-bedroom single family house.  The £12M development involves the demolition of the entire building, replacing it with a five-storey block of 27 flats, and underground car park.  The proposed scheme comprises 5 No. one-bedroom, 17 No. two-bedroom and 5 No. 3-bedroom flats, providing  space for up to 95 occupants.  

It is very disappointing to see in their Affordable Housing Viability Statement that the developer, like the others involved in residential schemes in Beckenham at the present time, doesn’t include any affordable housing provision.  The smallest one-bedroom flat in the £12M development is expected to market for £325,000.  The developer’s claim that they can’t afford to provide affordable housing in the scheme, is unacceptable in our view and the proposed Section 106 payment of £120,000 to the Council, insubstantial.

The amended plans show the number of car parking spaces reduced by five, down from 27 (one for each flat)  to 22.  All parking is now shown underground, and a small amount of additional landscaping replacing the five parking spaces previously shown at ground level.

If you commented on the original scheme earlier this year, we recommend you submit your views again for this amended scheme.  The closing date for comments is 26 October.  Beyond this date, you can still submit your comments by email to both planning@bromley.gov.uk and robin.evans@bromley.gov.uk.  Don’t forget to include the case reference number, and your name and address, or your comments will not be registered.




 

Amendments to development proposals at 76a & 76b The Avenue

76 Avenue aerial

76a and 76b The Avenue  20/05047/FULL

In the last few days we’ve been informed that amended plans have recently been submitted for an application made last Christmas for the demolition of these two 1930s houses, replacing them with a five-storey block of flats, and houses to the rear of the site, is also still under consideration by the Council.  The application also includes the resurfacing of The Avenue between the site and the junction with Westgate Road, which is an unmade road.

The new block of 18No flats comprises 10No one-bedroom and 8 No two-bedroom units.  3No three-storey terraced, mews-style houses are proposed behind, providing accommodation for up to 70 people.  Car parking is provided for 16 cars behind and in front of the block.

The three houses appear fairly well appointed, however the layout and size of the flats is cramped and many barely meet the minimum space standards required.

This development doesn’t include any affordable housing provision.  

Some residents on the road are concerned about the size and height of the development, that it is an over-development of the site and the traffic problems that could result from any resurfacing of the road.  

The amended plans include additional windows to several individual flats and some of the common areas to improve natural light into these spaces.

If you commented on the original scheme earlier this year, we would recommend you submit your views again for this amended scheme.  The closing date for comments is 26 October.  Beyond this date you can still submit your comments by email to both planning@bromley.gov.uk and the case officer jessica.lai@bromley.gov.uk.  Don’t forget to include the case reference number above and give your name and address, or your comment will not be recorded.  

The case is expected to go before a planning sub-committee meeting either on 25th November or 9th December.



major new housing development at worsley bridge road, June 2021

A major new housing development is being planned at the former British Gas sports ground on Worsley Bridge Road, at the junction with Copers Cope Road.

The proposed development, situated on Metropolitan Open Land (MOL), is for 121 new homes comprised of 39 three-bedroom houses and 82 one and two-bedroom flats and 100 car parking spaces.

newhomescb

 

The developer is holding online Q&A sessions today (Tuesday 8th June) and tomorrow (Wednesday 9th June)

Here is a direct link to the consultation where you can find detailed information about the proposals and register to join one of the online Q&A events.

The developer’s letter to local residents is below:

 

Caerus Beckenham Q&A letter

 

 

 

 

 

Council decide £40M Crystal Palace Park Regeneration Scheme this week, March 2021

Bromley Council are meeting on Thursday 25 March to consider their Crystal Palace Park regeneration scheme for outline planning approval. 

Plan of the Park and proposed changes  (red dots and text added by CCARA)

The major project, first submitted last spring, involves the conservation and repair of heritage assets across the Park, landscaping, new paths, the demolition of some existing buildings, the change of use of some land and the construction of new buildings, including two housing developments.

Around half of the £40M cost of the scheme is to be funded by the two new residential developments.  The existing caravan park, at Rockhills in the northern corner of the Park, would be cleared to make way for 140 new flats built on part of the land with the remainder being returned to public access.  Further east, along Crystal Palace Park Road, the existing nursery building, St John’s Ambulance station and Park Rangers’ maintenance building would be demolished and replaced with a second housing development of 70 new flats called Sydenham Villas.  The London Plan requires developments on public sector land to provide 50% affordable homes, however the Council is proposing only 24 flats of this category.

The nursery would be relocated to a new Community Centre, to be built on the existing caravan park site.  A new Park Ranger’s building would be provided slightly further west from the current building.  St John’s Ambulance would be relocated either to the new Community Centre or a new Information Centre proposed to be built on the site of the existing building, close to the Penge Gate.

A new Cultural Centre is proposed at the Upper Terrace and would be linked to the Subway.  Some of the Farm buildings at the Capel Manor College would be demolished and rebuilt, and others renovated to improve facilities for the public.

The meeting is on Thursday 25th March at 6.30pm and the public can view it via YouTube.

Full details of the proposals, and a link to the meeting can be found here

another large Housing Development Planned on Bromley Road, march 2021

A planning application has been made to the Council for 27 flats and involves the demolition of another large Victorian house in Beckenham, on the corner of Crescent Road and Bromley Road.

The scheme, by Woolbro Group, involves the demolition of the existing two-storey Victorian building and recent annexes, last used as a care home, replacing it with a large, part-three part-four storey block of 27No. flats.  The new building comprises 12No. one-bedroom and 15No two-bedroom flats with the capacity to accommodate up to 82 people.  Only 19 parking spaces are provided.  

Crescent Road proposed elevation

Despite a requirement in the Bromley Local Plan for affordable housing to be provided in every new development of 11 units or more, here is yet another example of a development being proposed in Beckenham which provides none at all, because the developer claims they can’t afford to include it.  The market value of the smallest  1-bedroom flats  in the £10M development is expected to be £300,000 each.

A time of writing, there had been more than 200 objections to the proposal.

Full details of the planning application are on the Council’s website here 20/05008/FULL where you can also register comments.
If you wish to comment on the proposal,  you have until Friday 19th March to do so.  
You must give your full name and address, or your views may not be registered.

New Housing Development Planned on Bromley Road, January 2021

A planning application has been made to the Council for 27 flats and involves the demolition of a large Victorian house.

Situated in a prominent location at the brow of the hill between Beckenham and Shortlands, at the corner of Downsbridge Road, 79 and 79a Bromley Road is a distinctive Victorian house from the mid-1800s and one of the last remaining grand villa houses that once lined Bromley Road.  

The three-storey building currently accommodates 13 retirement flats and an adjoining, four-bedroom single family house.  The £12M development involves the demolition of the entire building, replacing it with a five-storey block of 27 flats, and underground car park.  The proposed scheme comprises 5 No. one-bedroom, 17 No. two-bedroom and 5 No. 3-bedroom flats, providing  space for up to 95 occupants.  None of the flats will be affordable housing.

The developer reported that no responses were received to consultation leaflets and emails sent last November to residents in the surrounding area, and to ward councillors.  Unfortunately CCARA was not consulted at this time and several residents have complained they were not made aware of the scheme until the planning application was made public at the beginning of January.  

We have written to the council objecting to the application, focussing on the loss of an attractive Victorian building, the scale and density of the new development, the lack of any affordable housing provision, loss of trees on the site, road safety concerns, amongst other issues.

Full details of the planning application are on the Council’s website here 20/03881/FULL
where you can also leave a comments on the proposal.  If you wish to comment, you must give your full name and address, or your views may not be registered.

 

Appearance of Mobile Phone Mast on Bromley Road, May 2020

Large Mobile Phone Mast Erected on Bromley Road

An administration error by the Council’s Planning and Development department appears to have resulted in the erection, without planning permission, of a large mobile phone mast on land behind the petrol station on Bromley Road.

In September 2019, a telecommunications company sought permission to erect an 18m (59ft) high base station tower directly behind the petrol station at 202 Bromley Road.  The application was refused by Bromley Council in November, deciding that the height, appearance and siting of the proposed mast would be detrimental to the visual amenities of the area, and would appear as an alien and incongruous feature in a backland setting  within a suburban residential area.  So, in February, local residents were shocked to see the tall structure suddenly appear on the skyline.  The mast is designed to hold six 2 metre-high antennae and a 30cm satellite dish, though at present the equipment hasn’t yet been fitted.

In a response to a freedom of information request, concerned neighbours discovered that the Council retained no record of an email being sent to the applicant notifying them of their decision to refuse the application.  It appears that, in the apparent absence of a decision within the statutory period of 56 days, the applicant decided to press ahead with construction.

It is believed the Council has sought legal advice regarding their position, but is not taking the matter any further.

Local residents told us yesterday that the reply to their FOI request was inadequate in several respects, and  they have since asked for it to be reviewed.  They are also investigating ways to appeal against the Council’s handling of the application and considering taking the case further, to the Local Government Ombudsman.

Full details of the planning application are here 19/04009/TELCOM

 

 

 

Crystal Palace Football Academy plans in Copers Cope Road approved by Bromley Council

The erection of a covered full-size football pitch and the creation of an artificial full-size pitch as part of an extended football academy was approved by Bromley Council’s Development Control Committee on 18 March.

Crystal Palace Football Club’s planning application also included plans for six training pitches ​of various sizes as well as a full size show pitch with spectator seating in Beckenham. ​The application proposes that the public will also be able to use the facilities. The council’s Development Control Committee were persuaded that ​while the proposed indoor pitch is inappropriate development on the Metropolitan Open Land (MOL) in Copers Cope Road, there are very special circumstances to outweigh the harm which would be caused. ​This includes the benefit to Crystal Palace Football Club and the community use.

Councillor Alexa Michael, Development Control Committee Chairman, said: “This site has been used for sport for over a hundred years and securing the long term future of the site and keeping its sporting use is very welcome news. It will also mean that Crystal Palace Football Club will continue to be intrinsically rooted in our Borough, sharing its roots with Crystal Palace, which is also in our Borough.  In addition to the commitment that the facilities will be used by the community, this will be a place where young people will receive football related coaching and a variety of life skills.”

There were concerns raised by local residents about the size and height of the indoor pitch and the impact on Metropolitan Open Land, with the 19 metre maximum height to the apex of the curved roof required for technical engineering reasons.

The academy facilities will be made available to the local community in partnership with the Palace for Life Foundation, with the Foundation delivering programmes for more than 14,000 local children and young adults across south London. The increased access to the new Academy facility will enable this  they can extend their reach in Bromley, especially for disability football, girls’ football, health and wellbeing programmes and employability workshops.

The approval decision is subject to the completion of a legal agreement and a section 106 agreement.​ It is also subject to approval by the Mayor of London.

Hotel and Flats Proposed Above Kelsey House, May 2019

Plans have been submitted to convert Kelsey House at 75-77 Beckenham High Street to a 68 room hotel and 9 apartments.

    

The project is a joint venture  between Travelodge and Dunward Properties which also includes a five-storey extension to the west (orange and yellow on the plan above) and south (green) of the existing building, extending up to the boundary with Village Car Care garage and back to the rear boundary.

The existing stair and lift core is to be demolished and rebuilt to serve the hotel, whilst a new, separate stair and lift will be built for occupants of the flats.

The bar and restaurant at ground floor level will remain unchanged.

Only 11 car parking spaces, 2 of which are disabled bays, are provided for the entire scheme.

Full details of the application can be found here 19/00286/FULL where you can also submit comments, should you wish to do so.

Alternatively, you can send your comments by email to planning@bromley.gov.uk and the case officer claire.brew@bromley.gov.uk, quoting the case reference number in the subject  window.  Remember to include your full name and address, or your comments may not be registered.

 

 

Proposed High Street Elevation

 

 

 

 

 

 

 

 

 

 

 

 

PLANNING and DEVELOPMENT Bulletin No.5, 30 August 2017

This is the latest in our series of updates on planning matters in and around the Copers Cope Area.  It’s been a while since our last bulletin, so this is quite a long one.

If you feel strongly about any of the planning applications below that are currently being considered by London Borough of Bromley, you can leave your comments by clicking the links provided, then clicking on the comments tab.  Don’t forget to give your name and address, otherwise your views may not be considered.

 

Two More Major Residential Development Applications:

Maybrey Business Park, Worsley Bridge Road 16/05897/FULL

Planning approval was refused in May for a large residential development on the Maybrey Business Park site, near to Lower Sydenham Station.

The site, next to the old Dylon site, itself undergoing redevelopment, is currently occupied by two light industrial buildings dating from the 1930s, comprising nine business units.  Maybrey Works, which sits next to an area of Metropolitan Open Land occupied by sports pitches and the Pool River, is part of the Lower Sydenham Business Area and has been allocated as a Locally Significant Industrial Site in LBB’s emerging Local Plan.

The proposal, by Bellway Homes, involved the demolition of the existing structures and the construction of five new residential blocks of between five and nine storeys in height providing 159No dwellings and 1243 sq m of commercial space at ground floor level, plus gym for residents, car parking, landscaping and infrastructure works.  The residential portion of the development comprised 75No one-bed, 56No two-bed (4 person), 6No three-bed (4 person) and 22No three-bed (5 person) flats.

The reasons for refusal were: the site is located within a Business Area in the Council’s emerging Unitary Development Plan; the height and scale of the development would be harmful to the landscape and would have an unacceptable visual impact on its surroundings; the scheme was considered a cramped over-development of the site; and the development would have an unacceptable impact on local transport infrastructure.

The developer has recently appealed against the decision.

 

Footsies Social Club, Lower Sydenham 17/00170/FULL1

Also refused recently was an application for another large-scale residential development, on land adjacent.

The site, presently occupied by Footsies Social Club and playing fields, is on a wedge of open land situated between the New Beckenham / Lower Sydenham rail line and the Pool River, and is next to the old Dylon site where 220 flats are currently under construction.

A previous scheme that proposed a number of residential blocks ranging in height from eight to nine storeys in height providing 253No dwellings was dismissed at appeal last year.

This latest application proposed the demolition of the existing buildings and redevelopment of the site, constructing a four to eight-storey (plus basement) development of 229No dwellings comprising 118No one-bedroom, 103No two-bedroom and 8No three-bedroom flats, together with the construction of an estate road, car and cycle parking and the landscaping of the east part of the site to form open space accessible to the public.

Reasons given for refusal were that: The site is within an area of Metropolitan Open Land and as such, the kind of development proposed was inappropriate; the site was considered inappropriate for tall buildings as they would have an adverse impact on the landscape and this outweighed the proposed benefit of opening up public access to the area of MOL; the applicant failed to show relevant special circumstances applicable to the scheme; the proposal did not provide sufficient affordable housing;

The applicant has subsequently appealed against the decision.  The appeal will be heard over four days from 30th January 2018.

 

Crusader Hall, High Street (behind shops from Cancer Research to Card Factory) 17/00029/FULL1

An application to demolish the existing Crusader Hall Clubhouse, situated behind shops on the High Street and accessed via Legion Alley, and redevelop the site to provide 2No one-bedroom and 7No two-bedroom flats, has been withdrawn.

 

3 Beckenham Road (above Barclays Bank) 16/02218/FULL1

An application in May last year for a three-storey addition, including a large, three-bedroom penthouse on the fifth floor, has been dismissed at appeal.

A proposal to build two additional floors for residential use on top of the two-storey Barclays Bank building opposite the cinema was approved in December last year.  The scheme comprises 2No. one-bedroom and 6No. two-bedroom flats.

 

Beckenham Methodist Church, Bromley Road 16/05699/FULL1

An application for a scheme to redevelop the church was granted planning approval in April.

The principle element of the scheme is a glazed atrium on the west wall of the church to provide a new entrance, community cafe, social space, creche and cloakrooms.  Upgrades to the church building, such as replacing the heating system, lights, flooring and seating, are also planned.  The scheme requires the demolition of the scout huts to the side of the main church building.  The church estimates the work will cost £800,000.

For more information, visit the church to view the plans on display and pick up a leaflet.

 

84 Albermarle Road 16/05788/FULL1

Planning permission was granted in March to demolish the existing large house on the site and replace it with a three-storey block of flats, comprising 6No one-bedroom and 3No two-bedroom dwellings, plus parking and landscaping.

 

13 Lea Road 16/05794/FULL1

A proposal to construct a new end-of-terrace house next to No13 Lea Road, which is located within the High Street Conservation Area, together with roof alterations to No13 itself, was refused permission in April.

Reasons given for refusal were that the proposal: represented a cramped overdevelopment of the site which would appear out of character with the streetscene and had inadequate spatial provision; would form a contrived design which would not respect or complement the form of the neighbouring property and fail to preserve and enhance the surrounding properties on Lea Road and wider Beckenham Town Centre Conservation Area; would result in a loss of existing on-site car parking provision.

 

NatWest Sports Ground, Copers Cope Road 16/05845/FULL1

Following a failed application last year to provide a hand carwash facility on the site, which sits next to Gambados, another application proposing the same use was similarly refused in May.

Reasons given for refusal were that the proposal would result in an inappropriate development on an area of Metropolitan Open Land (MOL); the acoustic report submitted was deficient in a number of areas; the proposal would cause noise and disturbance to the local area.

 

61 The Avenue 17/01955/FULL1

Another planning application is currently being considered by the Council proposing the demolition of the existing house, which is located in the Downs Hill Conservation Area, and development of two blocks comprising 3No two-bedroom flats on the site.

This is the fourth application in as many years and comes, oddly, after a successful application last year to develop the site to provide two new family houses, which in our opinion is more suited to the particular location than flats.

The Council refused the application earlier this month on the grounds that the proposal by reason of the size, height, bulk and massing of the buildings, would result in an overdevelopment of the site and would fail to preserve or enhance the character and appearance of the Downs Hill Conservation Area.

 

10 Copers Cope Road 17/03033

Another retrospective planning application has been made for a basement and ground floor dwelling, that has already been built in the rear garden.  A similar retrospective application was refused last year and LBB had also taken enforcement action.

No 10 is described as a four-storey, end-of-terrace hotel building that has been extensively  refurbished.  In 2015 the owner was granted permission to build a structure in the rear garden to provide additional facilities for the hotel, including a laundry, fitness room, staff room, office, toilets and storage.

The building had since been repurposed to become a three-bedroom dwelling, without permission.  The building had also been found to be larger than the original consent allowed, and included a second lightwell that wasn’t on the consented drawings.

 

56A Foxgrove Road 17/00624/OUT

The Council is currently considering an outline planning application for the demolition of the existing 6No flats and garages and developing a three to four-storey block comprised of 18No flats, with car parking and landscaping.

 

14 Southend Road 17/00664/FULL1

Another application was refused in April for the construction of a three-storey side and rear extension and the conversion of the existing house, which sits in the Southend Conservation Area, to 4No one-bedroom and 1No two-bedroom flats.

The reason given for refusal was that the proposed extension would harm the character of the conservation area due to its prominent siting, height and scale and its relationship to the existing and adjacent buildings.

A similar application was refused last year.

 

45 Beckenham Road 17/02701/FULL1

A planning application has been submitted for the conversion of the semi-detached house to a House of Multiple Occupation (HMO).

8No bedrooms are proposed over the ground, first and second floors, comprising 7No double and 1No singles, providing accommodation for up to 15 people.  Occupants share one kitchen/dining room and several bathrooms.  Only two of the bedrooms have en-suite bathrooms.

 

Carlton Court, 23 Beckenham Road 17/02890/FULL1

A large residential development has been proposed at Carlton Court, a two-storey block of six two-bedroom flats, diagonally opposite the Fire Station, on the corner with Hayne Road.

The planning application proposes the demolition of the existing building and garage block and the construction of a four-storey block of 30No flats comprised of 11No one-bedroom, 18No two-bedroom and 1No three-bedroom flats.

The existing block provides accommodation for up to 24 people, whereas this new proposal will accommodate up to 88 people, however only 15No car parking spaces are provided for future residents.

This is a significantly larger scheme than the one granted planning approval last autumn, which was to add one storey to the existing building, providing 4No additional flats.

 

Chinese Garage, Wickham Road 17/03273/RECON

Planning and Listed Building Consent was granted in December last year for the conversion of this landmark building from a car dealership and garage to 2No ground floor retail units and 2No two-bedroom flats on the first floor.

The drawings submitted with the original application 16/02988/FULL suggested that the two retail units would be occupied by Pets at Home and Majestic Wine.   However this more recent application, for extended operating hours in the morning and evening, makes clear that Tesco now intend to take the lease, instead of Pets at Home.

There has already been much concern among local residents about the effect this proposal may have on the traffic congestion around the area of the roundabout where the building is located, increased noise and pollution, increased frequency of delivery vehicles, and the possible negative effect a supermarket would have on the parade of shops and businesses opposite.

At the time of writing there had been over 600 letters of objection to the proposal.

The official deadline for commenting on the application is 31st August, although your views will still be taken into account after this date if you email the case officer russell.penn@bromley.gov.uk and planning@bromley.gov.uk stating the case reference 17/03273/RECON in the subject line (remember to include your name and address at the end of your email, otherwise your views may not be considered).

 

Eden Park High School, Balmoral Avenue 16/03145/OUT

Outline planning permission was granted in June for a new secondary school on the South Suburban Co-Op Society site in Elmers End.

The controversial scheme provides a new school with eight forms of entry catering for up to 1,680 pupils.  The development comprises 2No two to three-storey teaching buildings totalling 13,500 square metres, plus sports hall, playing fields, multi-use games area, floodlighting, parking and access road.

According to their website, the school is due to open this September with 180 Year 7 pupils in temporary accommodation.

 

Change of use from Commercial to Residential

Three years ago, the Government relaxed the planning laws to make it very easy to convert office premises to residential use.  Over this period, the majority of office space on Beckenham High Street, much of which was fully-let and in demand, has been given approval to be converted to flats.  Minimum space standards that are required for new-build or conversions do not apply to dwellings converted from offices, so many of these flats can be very cramped.

The largest of these sites include St Brides’s House (now complete), Marqueen House, Ironstone House and Provident House on Burrell Row, Kelsey House at Thornton’s Corner and Burnhill House on Burnhill Road.  As a result, many thousands of square feet of purpose-built office space has been lost and cannot be reclaimed.

 

Here are some of the latest applications for conversion from office to residential  use:

Newbeck Court, 125 Park Road 16/05068/FULL2

An application for the change of use of the offices at Newbeck Court, next to the railway and adjacent to New Beckenham Station, to residential use comprising 2no. two-bedroom  and 1No one-bedroom flats with 3no. car park spaces, has been approved.

 

8-12 Bromley Road (above Chom Chom restaurant) 17/01036/RESPA

A change-of-use application has been approved to convert the two floors of offices over Chom Chom restaurant to flats, comprising 10No one-bedroom dwellings comprising 7No one-bedroom/one-person and 3No one-bedroom/two-person flats.  According to the plans submitted, half of the flats appear to be below minimum space standards, with one of them just 32.2 sq m (347 sq ft).  Last week Chom Chom announce they had closed down.  We wait to see what takes its place.

 

Burnhill House, 50 Burnhill Road (Kelsey Square) 17/03675/FULL1

At the end of July last year Bromley Council granted ‘prior approval’ consent for the last remaining office building in the Beckenham High Street area to be converted into flats.  Burnhill House, situated adjacent to Lidl supermarket, was the subject of an application to convert the offices to 14No one and two-bedroom flats in 2015.  The council initially refused to grant consent, on the grounds that the proposal had inadequate provision for car parking, and would cause problems with highway safety on such a narrow section of the road.  An appeal by the applicant was dismissed, however a new application for the same scheme, but accompanied by a blank legal agreement promising the flats to be ‘car-free’ dwellings, was submitted and regrettably the Council capitulated and the application for the conversion of the office space to 14No flats was granted.

CCARA objected strongly against this application as, in our opinion, it provided an extremely poor standard of living accommodation, particularly in terms of space, privacy, noise, natural light and amenity.

Incredibly, earlier this year, the building owner made a fresh application for no less than 24No one-bedroom flats.  There were no drawings to show how ten more flats could be shoe-horned into the limited confines of the building, but thankfully the council refused the application.

This month, yet another application has been submitted, this time proposing an additional 9No new flats ‘bolted-on’ to the second floor and roof and substantial alterations of the existing building.  If granted permission, this would again bring the total number of flats the site to 24 (two existing flats on the first floor being retained and one flat originally proposed on the ground floor being sacrificed for bike and refuse storage) enabling up to 54 people to live there.

No car parking is provided (future residents will apparently not be allowed CPZ parking permits) and this will lead to pressure on nearby roads without parking restrictions.

We regard this latest proposal as an over-development of an already awkward building on a constrained site.  We’ve also noted there will be a marked disparity between the flats in the converted office space, which aren’t required to meet minimum national space standards, and the new flats which are.  Additionally, there is no requirement by the developer to provide affordable homes, as they are proposing nine new units (ten or more, and a proportion have to be ‘affordable’).  There is no requirement for any of the flats in the converted office space to be ‘affordable’.

If you would like to have a closer look and comment on this latest scheme, click on the link above.

 

Applications on the High Street:

 

218 High Street (old Ardec shop) 16/04171

Earlier this year, permission was granted at appeal for the change of use of the old Ardec shop to a restaurant on the ground floor with an extension to the rear (15/02489).

A further application for kitchen extract equipment and drainage proposals was granted consent this month.  Hoardings have since been erected, indicating that work has started inside.

 

210 High Street (old Clark’s shop) 16/04189/CUTA3

An application 16/05191/FULL1 submitted last November for the installation of a kitchen extraction hood external ducting to rear of the property was refused in March this year, on the grounds of insufficient information.

After an application 17/00050/LAPRE was made by the owners to vary and extend the current premises licence at Two-Ten, the establishment had its licence suspended on 26th April for three months.

The decision followed a number of apparent breaches of its existing licence since the restaurant opened in December last year.  The owners have been ordered to address several matters including noise, the sale of alcohol, building regulations, fire regulations, compliance with smoking laws and installation of a cctv system.

At the time of writing, there is currently also an enforcement enquiry underway regarding an alleged unauthorised change to a shop front together with the installation of a unauthorised canopy to the rear of the building.

 

206 High Street (old Chas Norman camera shop) 16/05707/FULL3

A retrospective application has been approved for the use of the first floor as a one-bedroom flat, and for shop front alterations including a roller shutter,new entrance to the flat above and shop window alterations.  The ground floor was  open for several months as an art gallery/shop, without any apparent name, before abruptly closing earlier this month.  We wait to see what takes its place

 

186A High Street (above Oliver Stephens Opticians) 17/00026/FULL1

An application to convert the existing three-bedroom duplex flat above the shop into 1No one-bedroom and 1No two-bedroom flats has been refused as the two dwellings would be lacking in adequate amenities and standard of accommodation for future occupants.

 

162 High Street 17/01568/ADV (old Horts Boutique shop)

The Council has taken enforcement action against Tech Check, the new occupier of the shop unit for changing a shop frontage and installing solid security shutters in a conservation area without planning permission.

The owners submitted a planning application in June, but made the alterations two weeks later, opening the shop at the end of the month.

 

 

12A High Street 17/00911/FULL1 (Coady’s Estate Agent)

Permission was granted in May for the change of use of the estate agents office on the railway bridge to a cafe.  At the time of writing, the cafe had not opened, but the its name, ‘Poached’ is shown on the window.

 

Beeches Court, 115-127 High Street (above Flower Studio) 17/01348/FULL

An application to reconfigure the 4No two-bedroom flats on the first and second floors to 8No one-bedroom flats was granted planning approval in May.

Beckenham Improvement Work Update 3rd April 2017

Improvement Works Update, Monday 3rd April, courtesy of F M Conway, contractor for the works:

 

Beckenham Improvements work update

Work for the week ahead 

Work on the raised footway between the Nat West and the steps will be completed.

Customers requiring the ATM will have to access this via the steps on the lower section of the High Street.

Works underway outside Kinleigh Estate Agents will be completed by early next week together with the work on the opposite corner adjacent to Beckenham Green. All barriers will be removed at both of these points by early next week.

Work will continue along the section of the High Street between Albemarle Rd and Bromley Rd but will temporarily stop just short of the Church Entrance in preparation for Easter celebrations.

Work to replace the pedestrian refuges at the junction of Rectory Road and High Street will commence as part of the upgrade work, in preparation for resurfacing the road at the end of April.

Work on the lower section of the High Street below the steps next to Coppers will start week beginning 10/4 but residents and retailers affected will be notified in advance to discuss access requirements to the shops and private car park entrances and potential alternative arrangements.

Second week update report

Beckenham Junction works have proceeded in line with expectations. Paving and kerbing work is now almost complete.

The High Street arm of the junction has now been adjusted bringing the approach to the traffic lights back to two lanes, with the traffic light re-sequenced. Traffic queuing has generally been reduced and traffic continues to be able to turn right into Southend Road from Albemarle Road. Work on the Thai Restaurant Corner and around into Rectory Rd has been completed and all barriers have been removed. Work on the raised footway between Coppers Restaurant and the Spa have been completed and the steps reopened.

About the scheme

The scheme is designed to make the town more attractive to visitors and shoppers by day and night. A major objective is to support existing businesses and encourage new businesses to invest in the town centre. The High Street investment improvements will create a more attractive and safer pedestrian environment. Improvements will include new paving and road surfacing, improved and attractive lighting, improved road crossings and bus waiting facilities, better facilities for cyclists and improved amenity spaces including Beckenham Green.

Extensive planning and consultation has been carried out since the scheme was proposed in 2012. The cooperation and input of the Beckenham Business Association and the Copers Cope Resident Association is gratefully acknowledged, with their input key in shaping the nature of the scheme.

Sign up for regular newsletter updates

Businesses and interested residents who want to follow the progress of the work over the next 18 months can sign up for the regular updates that will be sent. Visit www.bromley.gov.uk/beckenhamimprovements to do this where the latest detailed traffic diversions are listed including information about bus routes and a link to TfL’s website www.tfl.gov.uk/BusChanges.

Thank you for your understanding and support

Every effort is being made to minimise disruption and your understanding and support is appreciated in advance if there are unforeseen issues which need to be resolved. If further specific information is needed, please contact Conway’s Helen McConnell who can be contacted, for help and advice. Helen, the Liaison Officer is the scheme contact for businesses and residents. Helen can be contacted on Mobile Tel 07917 518 529 or email Beckenham@fmconway.co.uk if needed.

Benedict House, Copers Cope Road: Proposal for a Residential Support Centre, February 2017

Two applications are currently being considered by London Borough of Bromley’s planning officers proposing the change of use of Benedict house, a former nursing home, to a Residential Support Centre.

LBB’s Director of Housing has provided a briefing document, below, to answer some of the concerns that have been raised so far:

What is the Proposal?

Benedict House has recently been purchased by developers who are seeking to redevelop the site for high quality apartments. Time is required to prepare for redevelopment meaning that Benedict House is likely to be vacant for up to 2 years.  In the interim the developers have offered the opportunity for the LondonBorough of Bromley to utilise the building for up to 2 years for use as temporary accommodation to help meet its statutory rehousing duties.

Why is the accommodation needed by Bromley for use as temporary accommodation?

The number of households presenting at risk of homelessness has increased steadily in recent years. For the majority, the reason for homelessness is that they are experiencing difficulties in affording the increasing costs of renting or buying a home.  A reduction in new build accommodation, increase in private sector rents and changes within social housing has meant that move on housing options havedecreased and the numbers in temporary accommodation has risen to unprecedented levels. This has meant that to meet the level of housing need the Council has had to utilise costly forms of insecure nightly paid accommodation which frequently falls short of requirements in terms of location and quality.  The use of Benedict House for up to 2 years would provide much needed local temporary accommodation whilst longer term housing solutions are identified.

Who decides which people would be placed into Benedict House?

The Council would retain full control over nominations throughout the periodof use. This means that the Council would decide who is placed into the accommodation and for how long.

Would people be placed from outside of the borough?

No, as the Council controls who is nominated only those households with a local connection with Bromley would be eligible. These would be residents who live and/or have permanent employment within the borough.  Prioirty would be given to those households who currently live, work or have children in schooling near to, or on direct transport links to Copers Cope Road.

What type of People will be placed?

Local people, mainly families or couples, who have become homeless throughno fault of their own and to whom the Council owes a statutory duty to assist in rehousing. A full assessment would be undertaken before any household isnominated and only those households who have been assessed as able to fully maintain a tenancy independently where the need is solely for housing rather than support would be eligible to be placed into Benedict House. The scheme would not be open to those people who are deemed vulnerable requiring intensive support to be able to manage a tenancy because of their vulnerability, such as those with enduring mental health needs. The council has alternative specialist support schemes which provide more intensive support for these people.

Who will manage the schemes?

The scheme would be managed by Omega Mears. They already work with the Council sourcing and managing a number of temporary accommodationunits and have a long track record of successful temporary accommodationand tenancy management. It is proposed that 24 hour on site management is provided. Mears would also provide ongoing advice and support to residentsin partnership with the Council to assist households to secure settled accommodation and ensure that they do not become homeless again. For example helping to access employment for those who may not currently be in full time employment.

Would I be able to contact anyone if I had concerns or queries about the Scheme?

Yes, full contact details of the Mears staff and Council’s housing needs team would be made available to all local residents so that they would be able to make contact should they have any queries or concerns at any point.

What type of tenancies would residents have? Can you guarantee that they would have to leave at the end of the 2 years?

All residents would be signed up to a licence agreement. This is a non-secureagreement meaning that they would not hold any interest in the property or have any rights to remain in the long term. The agreement sets out residents’ responsibilities and the conditions they must meet to be eligible to stay in the accommodation. This includes their conduct and the conduct of any visitors to the scheme. As the agreement is not a ‘protected agreement’ it can be brought to an immediate end should any resident or their visitor breach these rules or the Council require vacant possession. In this way conditions can be actively enforced to ensure that the scheme operate successfully without disturbance or disruption for any other residents in the scheme or local community and can ensure vacant possession at the end of the period of use as temporary accommodation.

To view the applications, and submit your own comments, click on the links below:

16/05442/PLUD

16/05849/FULL1

Remember to include your name and address in any correspondence otherwise your comments will not be registered.

Residential Support Centre / Hostel proposed on Copers Cope Road, January 2017

Applications have been submitted for proposed change of use of a former nursing home on Copers Cope Road to a Residential Support Centre.

Benedict House, on the corner of Park Road, was in use as a nursing home until last year, when it closed following an inspection by the Care Quality Commission which found it to be inadequate (click this link to read article in the Bromley Times last summer).
Omega Mears, a care service provider, proposes to lease the building from the current owner, Spring Capital Management, with the intention of using it as a ‘residential support centre’ to provide ‘accommodation, care and support services’ for ‘homeless families, vulnerable young adults and emergency housing requirements arising from healthcare needs and other issues’.
Two separate applications have been submitted: the first for a certificate of lawful proposed use (as a residential support centre) ; the second for a temporary change of use from a care home to a residential support centre.  We believe  the purpose of the second application is in case the first one is refused.  Both applications are supported by letters from Bromley Council’s Education, Care & Health Services department.
The letters from LBB EC&HS point to the fact, amongst others, that numbers housed in temporary accommodation has more than doubled in the last five years, hence the increasing requirement for facilities such as this, particularly for parents and children who have become homeless through no fault of their own.
No external alterations are proposed to the building and there is no increase in the number of bedrooms from when it was in use as a nursing home.  There are 41 bedrooms in total: 35 double, 5 single and 1 disabled.  30 bedrooms are ensuite.  Omega Mears have submitted a comprehensive Management Plan and the facility will be supervised 24 hours a day.
You can view both applications in full, including the Council letter and Management Plan, and comment on the proposals by clicking the links below:
CCARA has written to the assigned planning officer and ward councillors requesting  that an informal meeting, or drop-in session, is held by council officers and representatives from the service provider, for residents to gain a clearer understanding of the exact proposals and ask questions in order that an assessment can be made of any areas of concern before the application is considered by the Council’s Planning Committee.

PLANNING and DEVELOPMENT Bulletin 04 – September 2016

 

This is the latest of our regular bi-monthly updates on planning and development in the Copers Cope area.  Our aim is to provide you with a concise and informative snapshot of recent planning applications, decisions and appeals.

 

Refusal of a Major Residential Development on Worsley Bridge Road 

The large-scale residential development planned behind the Dylon site, near to Lower Sydenham Railway Station at the northern end of Worsley Bridge Road, has been dismissed at appeal.

The site, presently occupied by Footsies Social Club and playing fields, is on a wedge of open land situated between the New Beckenham / Lower Sydenham rail line and the Pool River, and is next to the old Dylon site where 220 flats are currently under construction.

In February last year an application (15/00701/FULL1) was made to demolish the existing single-storey buildings on the edge of the Footsies site and construct a building of varying height, from eight to twelve storeys, to provide 296 residential units, a new estate road, parking and cycling spaces and landscaping of land to be accessible by the public.  The scheme comprised of 148No. one-bedroom, 135No. two-bedroom and 13No. three-bedroom flats.  In September last year the application was refused and became the subject of an appeal, which was later withdrawn.

A second application, for a slight variant of the above scheme, but with 253 dwellings, had also been lodged by the developer (15/04759/FULL1). This, too, was refused and the applicant subsequently appealed against the decision.

The appeal hearing was finally held over several days in May and the Planning Inspectorate released its decision last month to dismiss it.

The principal reasons for the dismissal are the effect the proposal would have on:

  1. The area of Metropolitan Open Land (MOL) on which it sited;
  2. The effect on the character and appearance of the surrounding area, in terms of the design, scale, density and risk of flooding;
  3. The amenities of occupiers of the future dwellings in terms of natural ventilation, solar gain and noise.

Click here to read the Planning Inspector’s Report

Beck House, 36A Copers Cope Road 16/02136/FULL1

Permission has been granted to construct a new, four-storey rear extension and an additional storey on top of the existing block of flats to create an additional 8No. two-bedroom and 1No. three-bedroom flats in connection with the existing 4No. two-bedroom and 1No. three bedroom flats which will be remodelled.

87A Bromley Road 16/02120/FULL1

Consent has also been given to demolish the existing two-storey house situated on the triangular plot of land between Bromley Road and Albermarle Road, close to Bishop Challoner School, and replace it with a part-three, part-four-storey block comprising 9No. two-bedroom flats.

Conifer House, 44 Southend Road 16/02179/FULL1

Planning permission has been granted to enlarge and refurbish this empty, three-storey block of flats on Southend Road, opposite the Stumps Hill Lane bus stop.  This includes  building an additional storey plus four-storey front and rear extensions to create 8No. flats in addition to the 10No. existing.  The new additions will comprise 1No. one-bedroom, 4No. two-bedroom and 3No. three-bedroom flats.  The existing 2No. one-bedroom, 6No. two-bedroom and 2No. three-bedroom flats will also be remodelled.

213 Kings Hall Road 15/04458/OUT

Last year, two outline planning applications were made to develop the land to the rear of 213 Kings Hall Road including part of the side garden of 215.  The initial proposal was for 5No. detached four/five-bedroom houses and gardens.  This was refused by the Council on the grounds of overdevelopment of the site.  Later in the year, a second application was made reducing the number of houses to 3No. however this was subsequently refused also, for the same reason.  The applicant has since lodged an appeal against the latest decision.  At the time of writing a date for the appeal hearing had yet to published.

3 Beckenham Road (above Barclays Bank) 16/02218/FULL1

Planning permission has been refused for a scheme involving the addition of three residential storeys on top of the existing, two-storey Barclays Bank building opposite the cinema.

The development comprised of 2No. one-bedroom and 6No. two-bedroom flats on the third and fourth floors, and a large, three-bedroom penthouse on the fifth floor.

The reasons given for refusal were that the proposal would be visually obtrusive, due to its design, scale, bulk and height; would detract from views in and out of the area; and would be detrimental to the character of the adjacent High Street Conservation Area.

20 Crescent Road 16/02752/FULL

An application to demolish a large 1890s Victorian villa house on a prominent corner near Chancery Lane and replace it with flats has fortunately been refused consent.  There was passionate opposition to the application by local residents, the Chancery Lane and Limes Road Residents’ Association and CCARA, with many letters of objection and a petition being sent to the Council.

10 Copers Cope Road 16/02834/FULL

A retrospective planning application for a basement and ground floor dwelling, that has already been built in the rear garden, has been refused permission.

No 10 is described as a four-storey, end-of-terrace hotel building that has been extensively  refurbished.  Last year the owner was granted permission to build a structure in the rear garden to provide additional facilities for the hotel, including a laundry, fitness room, staff room, office, toilets and storage.

The building has since been repurposed to become a three-bedroom dwelling, without permission.  The building has also been found to be larger than the original consent allowed, and includes a second lightwell that wasn’t on the consented drawings.

Enforcement action is now being taken by LBB in addition to the refusal of the retrospective application.

Carlton Court, Beckenham Road 16/03105/FULL

A planning application has been submitted to add another storey to the two-storey flats, situated at the junction with Hayne Road, to provide 2No two-bed and 2No one-bed flats.

 

CHANGE OF USE FROM COMMERCIAL TO RESIDENTIAL

Three years ago, the Government relaxed the planning laws to make it very easy to convert office premises to residential use.  Over this period, the majority of office space on Beckenham High Street, much of which was fully-let and in demand, has been given approval to be converted to flats.

The largest of these include St Brides’s House, now practically complete, Marqueen House, Ironstone House and Provident House on Burrell Row, and Kelsey House at Thornton’s Corner (recently subject of a second application, see below). As a result, many thousands of square feet of purpose-built office space have been lost and cannot be reclaimed.

Burnhill House, 50 Burnhill Road 16/02466/RESPA

At the end of July Bromley Council granted ‘prior approval’ consent for the last remaining large office building on Beckenham High Street to be converted into flats.

50 Burnhill Road, had been the subject of an application to convert the building, situated adjacent to Lidl supermarket, into flats last year.  The council initially refused to grant consent, on the grounds that the proposal had inadequate provision for car parking, and would cause problems with highway safety on such a narrow section of the road.  An appeal by the applicant was dismissed earlier this year, however a new application for the same scheme, but accompanied by a blank legal agreement promising the flats to be ‘car-free’ dwellings, was submitted in May and regrettably the Council capitulated.

CCARA objected strongly against this application as, in our opinion, it provides an extremely poor and cramped standard of living accommodation. Other areas of concern are what appear to be multiple entrances to the development, no provision for refuse storage and an impractical proposal to store 14 bicycles in the Burnhill Road entrance lobby.  It will be interesting to observe whether this ‘car-free’ agreement, implemented by other developers of commercial-to-residential buildings in Beckenham, will work in reality particularly as Bromley has the the third highest number of car owners out of all the boroughs of Greater London.

Kelsey House, 77 High Street 16/02649/RESPA

Prior approval has been refused for an application to convert the four storeys of office space above the Kelsey House Bar & Kitchen to twenty flats, comprising of 8No. one-bedroom and 12No. two-bedroom (3 person) dwellings.  Reasons given for refusal were the lack of an environmental noise assessment and that future occupiers of the dwellings could be negatively affected by noise from the Bar & Kitchen on the ground floor and other neighbouring commercial premises.  The building is also in a medium flood risk zone and no flood risk assessment had been submitted with the application.

Last summer, a prior approval application had been granted for sixteen flats.

The freehold building is currently on the market for £4 million.

171a High Street 16/02021/RESPA

Following refusal earlier this year, Prior Approval has now been granted to convert the commercial space above Beckenham Pharmacy to 1No two-bedroom flat.

9 Kelsey Park Road 16/02126/RESPA

Prior Approval has been given to convert the two floors of office space above Grand Cru Co wine merchants to 1No three-bedroom flat and 1No two-bedroom flat.

Victorian house on Crescent Road threatened with demolition, July 2016

IMG_3144

An application proposing the demolition of a large Victorian house on the corner of Crescent Road and Limes Road has been submitted for planning consent

Number 20 Crescent Road was built in 1890 and occupies a prominent corner site, at the junction of Limes Road, on the boundary of the Chancery Lane Conservation Area.  It is one of the few remaining large Victorian houses on the road and a very fine example of late-victorian architecture, displaying many details characteristic of the period, for example polychromatic brickwork and stone window arches.

Crescent Road has a predominance of houses rather than flats, which is at odds with the impression given in the application documents; just two plots on the road are occupied by purpose-built blocks of  flats, the rest by houses of varying ages and styles: generally late Victorian and Edwardian detached and semi-detached towards the east and 1920s/30s examples to the west.

The proposed replacement is a ubiquitous building of seven flats which, together with a car park and garages occupying nearly three-quarters of the existing garden, would diminish the character of the area considerably, in our opinion.

CCARA has written to the Council objecting to the proposed demolition and the scheme in general, and there has already been strong opposition from other local groups and residents, including the Chancery Lane & Limes Road Residents Association.

You can view the application in detail and submit your own comments by clicking this link:

https://searchapplications.bromley.gov.uk/onlineapplications/applicationDetails.do?activeTab=summary&keyVal=O8FTZRBTG9G00

Flats proposed on top of Barclays Bank, Beckenham, June 2016

3 Beckenham Rd Front
Beckenham Road elevation

A recent planning application has been made to build three additional storeys of flats on top of the existing Barclays Bank on Beckenham Road, near to the war memorial.

The application incorporates a scheme for two additional residential storeys that was granted consent more than three years ago, but which expired on 10th April this year, 13/00407/FULL1 , plus a fifth storey penthouse apartment.
(Note: the drawings also indicate an unconnected scheme for the site at 436 Croydon Road, currently a temporary furniture showroom.  This has not been built and the Council are understood to be investigating the current planning status)
CCARA has written to the Council, objecting to the application and expressing the view that the proposal would have a detrimental impact on the surrounding area.  Whilst the Association does not have any major objection to the four-storey scheme previously consented, we consider the newly-proposed fifth storey in the current application an unwelcome addition, for the following reasons:
1. Most buildings in the area are either two or three storeys high, with a few being four storeys.  Allowing a five-storey development would set an undesirable precedent with regard to other sites in the immediate vicinity that hold the potential to be redeveloped in the future.
2. The site is in a sensitive location, right on the edge of the Beckenham High Street Conservation Area and sitting opposite the Grade 2-listed Odeon Cinema and the Post Office, a locally listed building.
3. The design of the building would dominate this important junction in the town and dwarf the adjacent Victorian houses on Beckenham Road.
4. The wave-shaped profile of the penthouse roof results in a fifth storey that would be nearly 5 metres high, further accentuating the visual height of the building.  The elevation drawings suggest the building would be nearly 17 metres high, at its highest point.
5.   No indication appears to be given regarding the materials, colour or finish of the cladding.  The presentation of the drawings seems to suggest a light-coloured render to the third and fourth storeys and a profiled metal roof to the penthouse.  Both materials would be inappropriate, detracting from the importance of the existing key buildings at the junction.
6. Assuming employees at the bank would still permitted to park their cars in the car park at the rear of the building, there would seem to be an inadequate number of parking spaces overall.
If you wish to view the proposal, click on this link, 16/02218/FULL1 , where you can also submit your own comments.